Lavorazione del terreno

Erpice rotante

New

Attrezzo per la preparazione del letto di semina, con fresatura e livellamento del terreno in un’unica operazione.

 

Robusto e compatto, l’erpice rotante è dotato di cinque rotori controrotanti sui quali è collocata una coppia di coltelli che ruota su un asse verticale (a differenza della fresa dove i coltelli ruotano su un asse orizzontale).

I coltelli rotanti frantumano le zolle di terra più grandi creando un letto di semina fine ed omogeneo, assicurando condizioni ottimali per la germinazione dei semi e per lo sviluppo delle radici.

Un rullo a rete posteriore permette di regolare la profondità di lavoro dei coltelli.

L’erpice rotante è dunque ideale per la fresatura ed il livellamento del terreno – eseguiti in un’unica operazione – nella preparazione di nuovi orti, prati e giardini, anche in spazi ristretti.

Nell’ambito dell’agricoltura biologica è inoltre un valido alleato per la gestione meccanica delle infestanti.

Dati tecnici

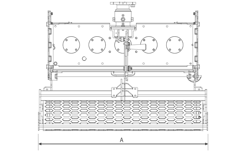
(A) Larghezza attrezzo Larghezza di lavoro Profondità di lavoro max. Potenza minima richiesta* Peso
850 mm 750 mm circa 120 mm 6,3 kW 78 kg

* dato puramente indicativo e riferito a condizioni standard.

Caratteristiche tecniche.

  • Flangia porta-coltelli rotonda chiusa con funzione anti-intasamento e protezione degli organi interni del rotore.
  • Rotori: supportati ognuno di due cuscinetti a garanzia di massima stabilità e affidabilità.
  • Barra posteriore per regolare l’affinamento della terra lavorata.
  • Rullo posteriore a rete in acciaio: supportato da cuscinetti lubrificati a grasso e regolabile in altezza tramite leva a cambio rapido.
  • Profondità di lavoro: regolabile tramite la leva a cambio rapido del rullo.
  • Attacco PTO: regolabile su posizione fissa oppure basculante.
  • Fianchetti laterali ammortizzati: regolabili su tre posizioni fisse e una flottante.

Rullo posteriore.

Il rullo a rete posteriore, in acciaio e più largo della larghezza di lavoro dell’erpice, ha una duplice funzione:

  • consente di regolare la profondità di lavoro dei coltelli,
  • completa il lavoro di fresatura livellando il terreno per creare un letto di semina ottimale.

 

Regolando il rullo nella posizione di trasporto, permettere al motocoltivatore di spostarsi da e verso il terreno da lavorare senza dover rimuovere l’attrezzo.

Una lama anti-intasamento permette di mantenere il rullo pulito da eventuali sassi o terra.

Tipologie di lavorazioni e impieghi.

L’erpice rotante è l’attrezzo ideale per:

  • Affinamento del terreno dopo l’aratura.
  • Preparazione del letto di semina.
  • Incorporazione di residui vegetali o concimi nel terreno.
  • Livellamento del suolo per migliorare la germinazione e la crescita uniforme delle piante.

 

L’erpice rotante viene generalmente utilizzato:

  • Prima della semina, per creare un terreno fine e omogeneo.
  • Dopo l’aratura, per rompere le zolle e rendere il terreno più lavorabile.
  • In agricoltura biologica, per la gestione meccanica delle infestanti.
  • In orticoltura, dove è richiesta una lavorazione molto fine e precisa.
  • Nella manutenzione del verde, per la creazione di nuovi prati.

 

Un ulteriore vantaggio dell’utilizzo dell’erpice rotante è l’ottima qualità di lavorazione anche in terreni difficili e sassosi.